積水樹脂 車止め カタログ&価格 BSK−F114 HB種
小田原鋼材
TEL 0465−83−5041
FAX 0465−83−5619 ←クリックすると見積依頼用のシートがあります(ご利用下さい。)
見積依頼・注文はこちらから↑→ e−mall k.odakou@future.ocn.ne.jp




|
シリーズ名 |
品種 |
タイプ |
品番 |
DXF |
PDF |
|
耐衝撃性ボラード HB種 |
プロテクトボラード BSK-F114 |
BSK-F114D(基礎式)脱着(サヤ管)式、樹脂キャップ(スワレフレックス反射体) |
BSK-F114D |
||
|
耐衝撃性ボラード HB種 |
プロテクトボラード BSK-F114 |
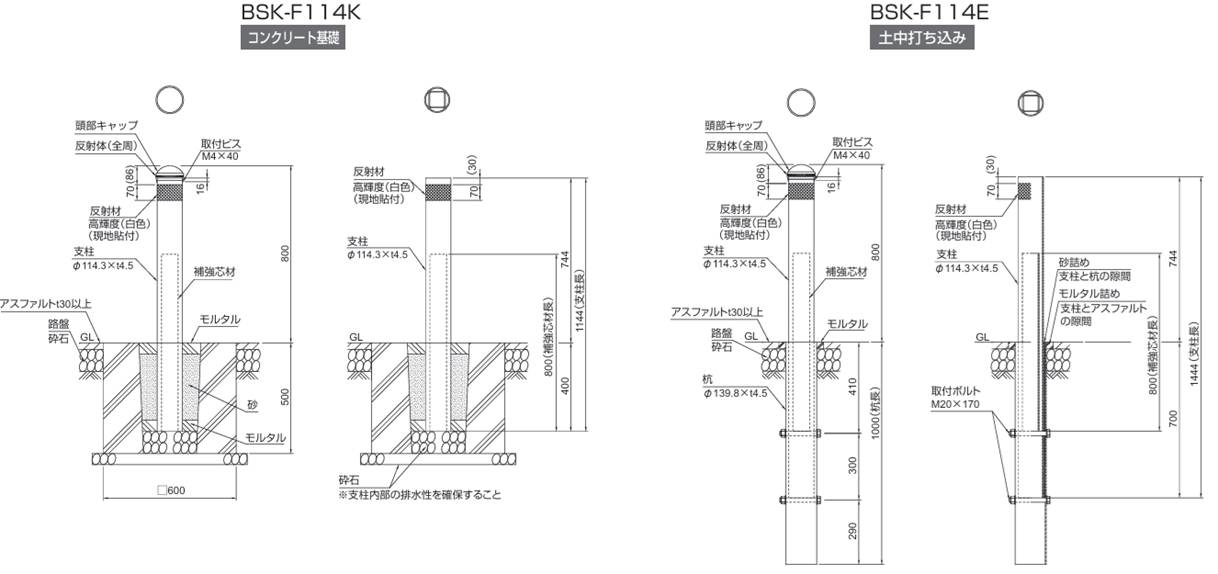
BSK-F114E(土中式)、樹脂キャップ(スワレフレックス反射体) |
BSK-F114E |
||
|
耐衝撃性ボラード HB種 |
プロテクトボラード BSK-F114 |
BSK-F114K(基礎式)固定式、樹脂キャップ(スワレフレックス反射体) |
BSK-F114K |
||
|
耐衝撃性ボラード HB種 |
プロテクトボラード BSK-F114 |
BSK-F114TK(交差点用自在R基礎式)、樹脂キャップ(スワレフレックス反射体) |
BSK-F114TK |
